
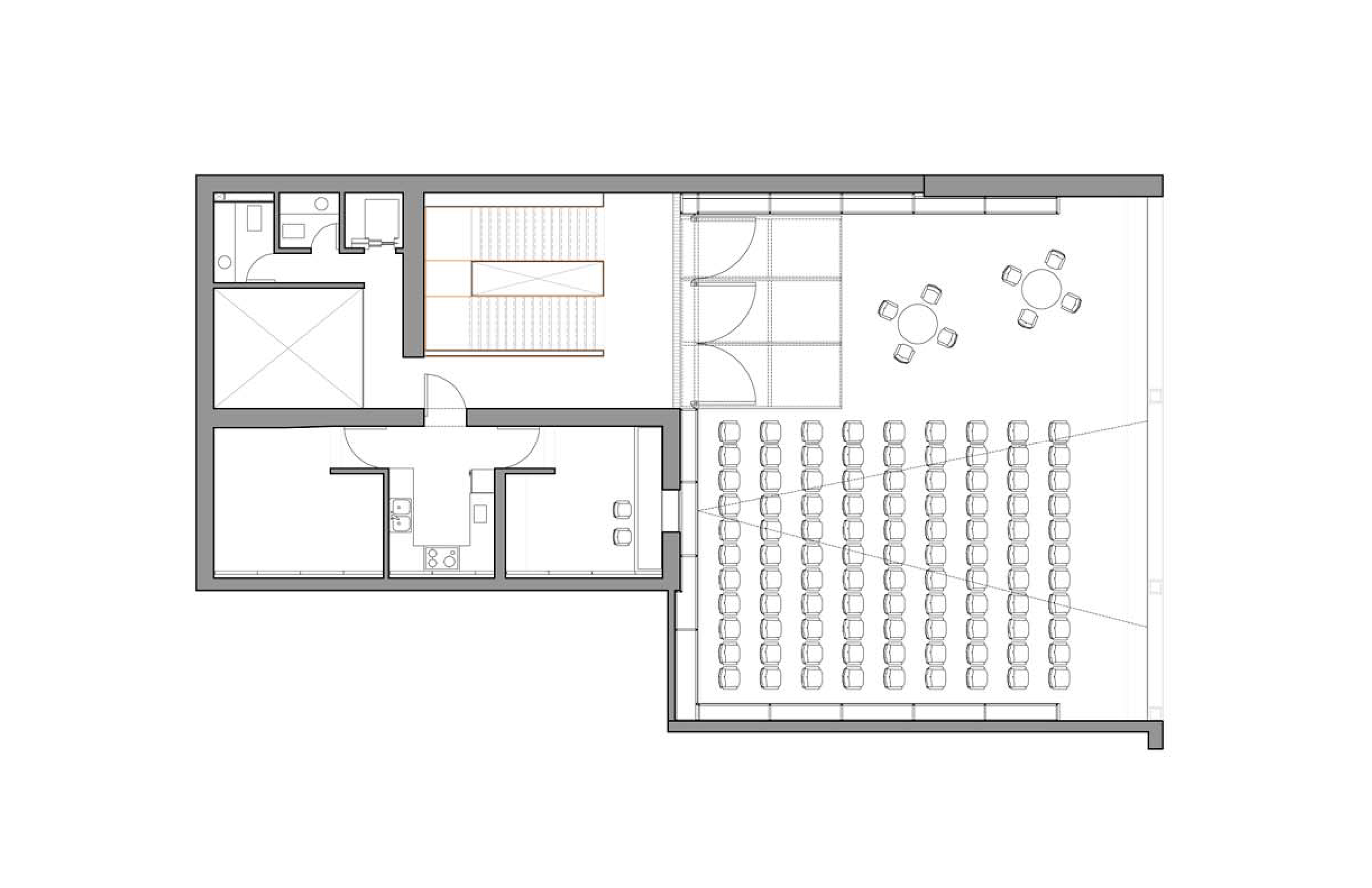
En la calle Isabel la Católica, en el Centro Histórico, una antigua casa colonial alberga la sede de la SGAE y un centro cultural con café, librería, sala de conciertos y terraza multiusos. El proyecto restauró el edificio histórico adaptando sus espacios como oficinas modernas y transformando una azotea abandonada en terraza para eventos culturales. La estrategia de diseño empleó materiales sobrios que generan continuidad y contraste con el edificio colonial, mejorando la iluminación natural para crear ambientes apropiados tanto para el trabajo como para la vida cultural, consolidando el inmueble como nueva referencia del Centro Histórico.






Fotografía
Rafael Gamo
Scroll