
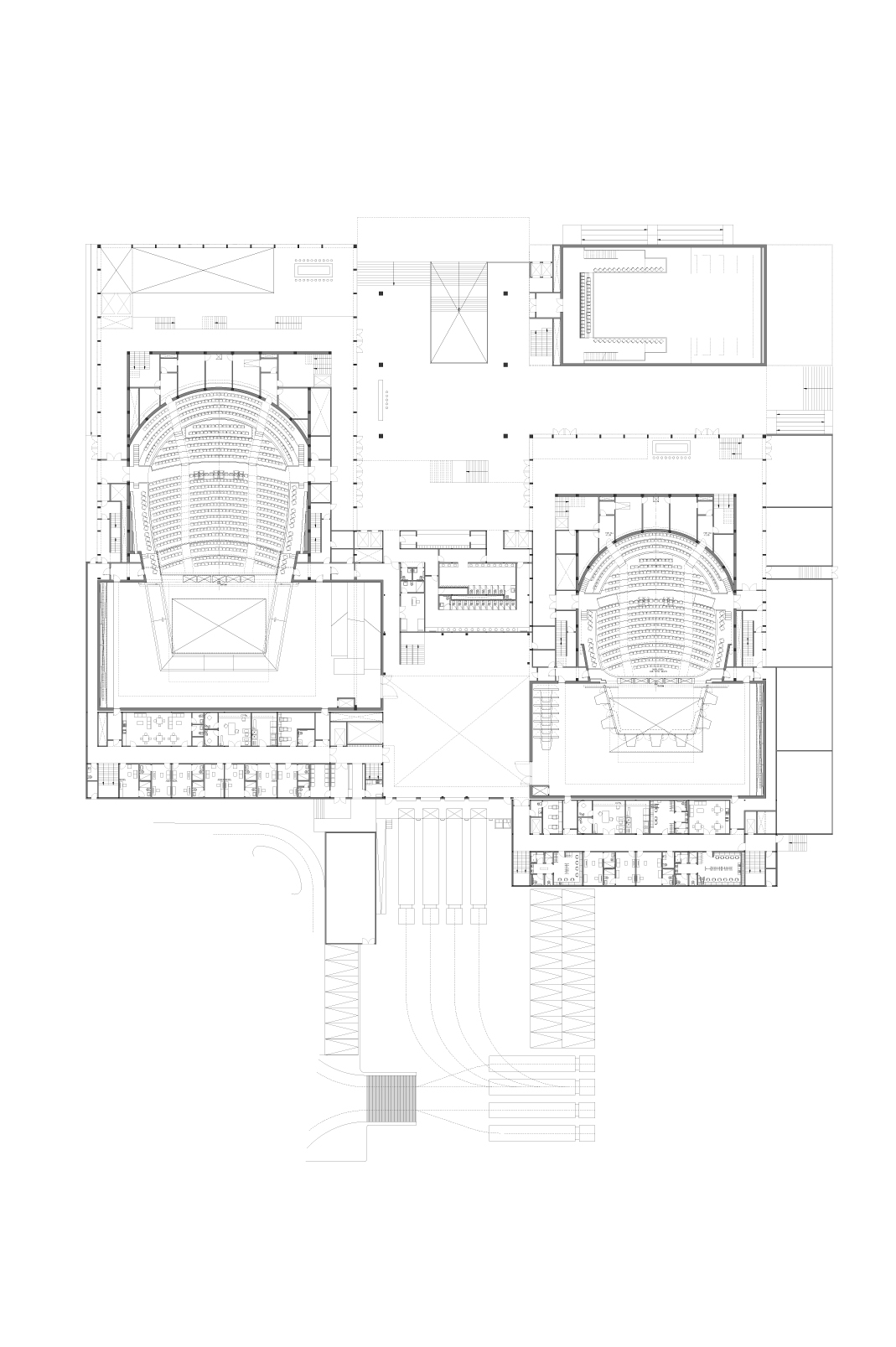
El Conjunto Santander de Artes Escénicas integra dos teatros, uno experimental y uno comercial, dentro del Centro Cultural Universitario. El proyecto se compone de tres volúmenes y una plataforma-plaza que conectan los edificios circundantes, la plaza central y el corredor universitario, transformando las circulaciones en áreas flexibles capaces de albergar múltiples actividades. El diseño articula interior y exterior mediante plataformas, vacíos y terrazas. La disposición de los teatros hacia el espacio público convierte la explanada en un escenario abierto, mientras la separación de los volúmenes genera perfiles arquitectónicos cambiantes que conforman un horizonte dinámico. Un referente contemporáneo de la arquitectura escénica en México.







Fotografía
Jaime Navarro
Colaboración
Fernanda Canales | Alejandro Hernández
Scroll